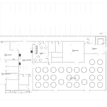
Este proyecto consiste en la proyección de un edificio "Salón de Eventos en los Santos de Maimona". Realicé el proyecto en un equipo con otros tres de estudiantes de ingeniería. Dos de ellos eramos electrónicos otro mecánico y otro eléctrico.
A cada uno de los integrantes del grupo se nos asigno ciertas tareas. Yo fui encargado de diseñar las instalaciones de calefacción y climatización, neveras industriales, elevador, accesibilidad, contra incendios, de realizar el estudio de Seguridad y Salud y de Impacto Ambiental así como de ayudar a realizar el anteproyecto. Utilizamos Revit y CypeCad como herramientas software.
Este proyecto se aleja de las disciplinas electrónica y automática, sin embargo en el grado nos formaron como ingenieros industriales por lo que parte de las asignaturas han sido dedicadas a enseñar cómo se calculan y diseñan de instalaciones en el ámbito industrial. Esos conocimientos se pueden aplicar a este tipo de proyectos.













